Search

Leave a Message

Thank you for your message. We will be in touch with you shortly.

Explore Our Properties

Property Description

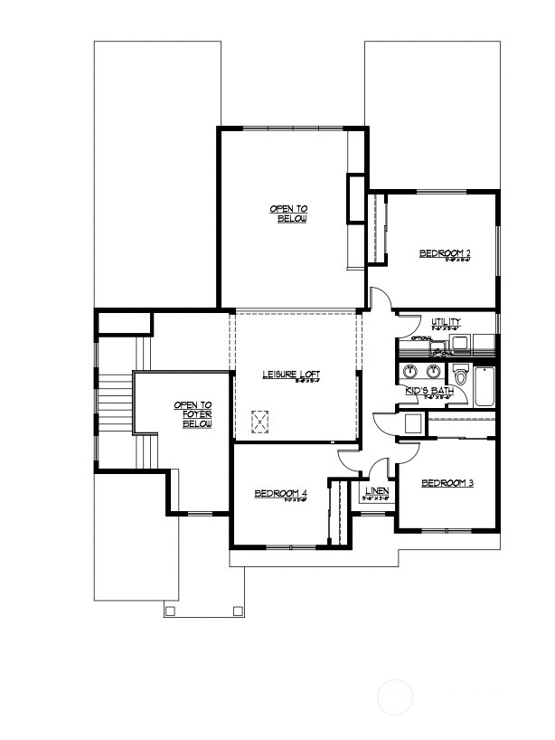
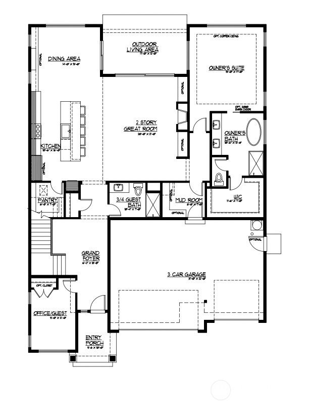
Experience luxury living in this stunning JK Monarch home. From the moment you enter, you know this one is special. Grand foyer opens into the gourmet kitchen, dining, and great room that pours out to the covered outdoor living space. This home features the primary on the main with an incredibly open design offering an additional bedroom or office on the main floor. Upstairs features 3 additional bedrooms and a multi-purpose loft. Models are available at our Edgewood communities. This home is being built with the RV garage option and it is included in the list price. (photos are of previous model + rendering)

Overview

Property Status
Sold
Lot Size
0.35 Acres
MLS ID
2039816
Property Type
Residential
Year Built
2023

Features & Amenities

View Description
Territorial
Stories
2
Garage Spaces
3.0
Water Source
Public
Roof
Composition
Lot Features
Paved
Parking
RV Parking, Attached Garage
Heat Type
Heat Pump
Air Conditioning
90 High Efficiency, Heat Pump
Fireplace
Gas
Appliances
Dishwasher_, Garbage Disposal_, Microwave_, Stove Range_
Other Interior Features
Ceramic Tile, Laminate, Wall to Wall Carpet, Bath Off Primary, Double Pane/Storm Window, Dining Room, French Doors, Vaulted Ceiling(s), Walk-In Closet(s), Walk-In Pantry, Fireplace, Water Heater
Sewer
Sewer Connected
Substructure
Poured Concrete
Other Exterior Features
Cement Planked, Stone, Wood
Elementary School
Buyer To Verify
Middle School
Buyer To Verify
High School
Buyer To Verify
School District
Federal Way
Sales Price
$1,205,000

Downloads

521 SW 366th Street #4

Schedule a Tour

We would love to help you see this beautiful home! As a full-service brokerage, we can help you tour. Please submit an offer, and answer questions about the buying process.

Thank you

for your interest in 521 SW 366th Street Unit: 4, Federal Way, WA 98023

521 SW 366th Street #4
Navigate

Featured Properties

  • 8612 SE 36th Street For Sale

    $3,249,995

    8612 SE 36th Street, Mercer Island, WA 98040

    • 4 Beds
    • 4 Baths
    • 4,240 Sq.Ft.
  • 12019 199th Court NE Pending

    $2,399,995

    12019 199th Court NE, Woodinville, WA 98077

    • 4 Beds
    • 4 Baths
    • 4,470 Sq.Ft.
  • 1540 Kirkland Avenue For Sale

    $2,330,000

    1540 Kirkland Avenue, Kirkland, WA 98033

    • 5 Beds
    • 4 Baths
    • 3,550 Sq.Ft.
  • 4150 Boulevard Place Pending

    $1,649,995

    4150 Boulevard Place, Mercer Island, WA 98040

  • 5410 Hershey Lane For Sale

    $1,648,000

    5410 Hershey Lane, West Richland, WA 99353

    • 4 Beds
    • 5 Baths
    • 5,129 Sq.Ft.
  • 828 2nd Avenue For Sale

    $1,450,000

    828 2nd Avenue, Kirkland, WA 98033

    • 3 Beds
    • 2 Baths
    • 1,180 Sq.Ft.
  • 14321 2nd Avenue NW For Sale

    $1,200,000

    14321 2nd Avenue NW, Marysville, WA 98271

    • 4 Beds
    • 5 Baths
    • 4,390 Sq.Ft.
  • 1601 California Avenue SW For Sale

    $1,020,000

    1601 California Avenue SW, Seattle, WA 98116

    • 4 Beds
    • 3 Baths
    • 1,920 Sq.Ft.
  • 14517 1st Avenue NE Unit: D For Sale

    $899,900

    14517 1st Avenue NE Unit: D, Shoreline, WA 98155

    • 3 Beds
    • 3 Baths
    • 1,803 Sq.Ft.
  • 36503 2nd Ave SW Pending

    $799,000

    36503 2nd Ave SW, Federal Way, WA 98023

    • 3 Beds
    • 3 Baths
    • 2,790 Sq.Ft.
  • 13631 55th Drive SE Pending

    $749,995

    13631 55th Drive SE, Everett, WA 98208

    • 3 Beds
    • 2 Baths
    • 1,471 Sq.Ft.
  • 3914 Barbera Street For Sale

    $749,000

    3914 Barbera Street, Richland, WA 99352

    • 3 Beds
    • 3 Baths
    • 2,549 Sq.Ft.
  • 31129 Cobble Hill Drive SE For Sale

    $699,000

    31129 Cobble Hill Drive SE, Sultan, WA 98294

    • 4 Beds
    • 3 Baths
    • 2,495 Sq.Ft.
  • 4005 NE 3rd Place For Sale

    $697,000

    4005 NE 3rd Place, Renton, WA 98056

    • 2 Beds
    • 2 Baths
    • 1,588 Sq.Ft.
  • 201 Galer Street Unit: 304 For Sale

    $595,000

    201 Galer Street Unit: 304, Seattle, WA 98109

    • 1 Bed
    • 1 Bath
    • 735 Sq.Ft.
  • 511 7th Avenue Unit: 103 For Sale

    $495,000

    511 7th Avenue Unit: 103, Kirkland, WA 98033

    • 1 Bed
    • 1 Bath
    • 825 Sq.Ft.
  • 2703 Boylston Avenue E Unit: 302 For Sale

    $375,000

    2703 Boylston Avenue E Unit: 302, Seattle, WA 98102

    • 1 Bed
    • 1 Bath
    • 647 Sq.Ft.
  • 5420 Hershey Lane Pending

    $165,000

    5420 Hershey Lane, West Richland, WA 99353

  • 5420 Hershey Lane Unit: Build Your Dream Home with STUNNING VIEWS! For Sale

    $165,000

    5420 Hershey Lane Unit: Build Your Dream Home with STUNNING VIEWS!, West Richland, WA 99353

View All

Follow Us On Instagram